Продаж 1-к. квартири в ЖК на етапі будівництва (Сихівський р-н)

ID:
29968081
52 300 $
вулиця Морозна, 8, Львів, Львівська область, Україна
    • Квартира
    • 1 кімната
    • Стадія будівництва
    • і/о газове
    • 7 поверх (10)
    • 39 м²

Опис

Продається 1 кімнатна квартира в ЖК MORO  вул. Морозна (Сихів, ТЦ Іскра), забудовник Новий Львів


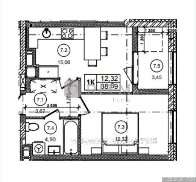
Загальна площа 38,69 кв.м.

7 поверх із 10


Здача  4 квартал 2027 року, будівництво активно триває.


Комфортний район з розвиненою інфраструктурою. Поблизу школи, садочки, магазини, ТРЦ.


Про комплекс:


ЖК MORO - сучасний житловий комплекс на вул. Морозна 

1 будинок, 10 поверхів, всього 95 квартир

Будівництво за монолітно-каркасною технологією

Стіни - керамоблок, утеплення мінеральною ватою

Висота стелі - 2,7 м

Індивідуальне опалення 

Підземний паркінг з ліфтом, гостьовий паркінг

Спеціальне укриття

Відкрита територія


Тетяна Масляник

Дізнатися про об’єкт

Найближчим часом наш менеджер зв’яжеться з Вами!

Схожі пропозиції

Ще 1-кімнатні квартири поблизу

Успішно!
Ваш запит надісланий! Скоро з Вами зв’яжеться менеджер для уточнення деталей.
Помилка!
Ваш запит не надісланий! Спробуйте, будь ласка, пізніше.
Увага!
Схоже Ви ввели некоректні дані. Перевірте правильність введених даних.