Продаж 2-к. квартири в новобудові на вул. Морозній

ID:
30014055
82 700 $
вулиця Морозна, 8, Львів, Львівська область, Україна
    • Квартира
    • 2 кімнати
    • Сирець
    • і/о газове
    • 9 поверх (10)
    • 60 м²

Опис

Продаж 2кім. квартири в ЖК Моро, забудовник Новий Львів.

Вул. Морозна 10, поруч готель "Соната", СЗШ№72, ДНЗ№17, вул. Зелена, Сихівська, базар "Іскра". АТБ


Вікна на Східно-Південно-Західну сторону

Поверх: 9 з 10.

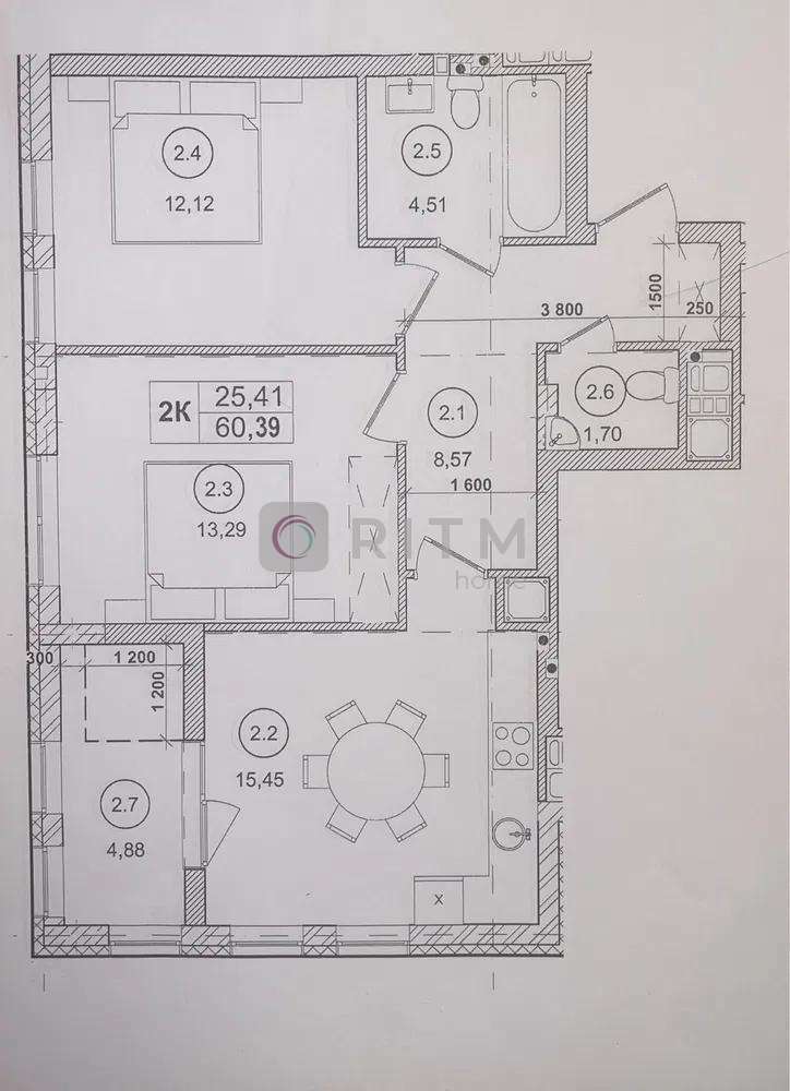
Площа: 60.39м.кв.

Кухня-вітальня: 15.45м.кв. (можна збільшити за рахунок лоджії до 21м.кв.)

Кімната: 13.29 м.кв.

Кімната: 12.12 м.кв.

Ванна кімната: 4.51 м.кв.

Туалет: 1.7 м.кв.

Засклена лоджія: 4.88 м.кв.


1 будинок, 10 поверхів, всього 95 квартир

Будівництво монолітно-каркасна технологія

Опалення: Індивідуальне газове.

Наповнення: стяжка в кімнатах, штукатурка стін, газовий котел, вікна, двері, комунікації.

Висота стелі чиста - 2.7м.

Стіни - керамоблок

Утеплення мінеральною ватою


Здача будинку 2027 рік

Будинок активно будується

Тетяна Масляник

Дізнатися про об’єкт

Найближчим часом наш менеджер зв’яжеться з Вами!

Схожі пропозиції

Ще 2-кімнатні квартири поблизу

Успішно!
Ваш запит надісланий! Скоро з Вами зв’яжеться менеджер для уточнення деталей.
Помилка!
Ваш запит не надісланий! Спробуйте, будь ласка, пізніше.
Увага!
Схоже Ви ввели некоректні дані. Перевірте правильність введених даних.