Продаж 4-к. квартири в центрі міста (під ремонт)

ID:
29841771
270 000 $
вулиця Галицька, 5, Львів, Львівська область, Україна
    • Квартира
    • 4 кімнати
    • Потребує ремонту
    • пічне
    • 4 поверх (4)
    • 120 м²

Опис

Квартира в самому серці Львова! 

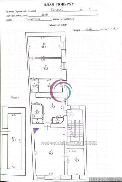
Локація: • Адреса: вул. Галицька, 5 (5 секунд до площі Ринок, центральна частина Львова). • Будинок: Кісьолківська кам’яниця, памʼятка архітектури місцевого значення

Основна інформація: • Кількість кімнат: за документами 5-кімнатна, • Загальна площа: 120.9м² • 1 кімната– 38,1 м² • 2 кімната– 12.3 м² •3 кімната-17.4м2 •4 кімната-18.8м2• кухня – 8.6м² • душова/туалет – 3.3м² / 1.4м2 •комірка-1.2м2 • підвал-20.3м2• 

Поверх: 4 з 4 можна вивести на стрих • Висота стель: 2.66м • Вхід: з підʼїзду • Санвузол: роздільний

Комунікації: • Газ, вода та електроенергія – з лічильниками. • Опалення-місцеве(індивідуальне) 

Стан квартири: потребує ремонту. Особливості та переваги: • Вікна двох кімнат виходять у двір, що робить квартиру тихою у центрі міста, вікна двох інших кімнат виходять на вул. Галицьку• Унікальне розташування на найпопулярнішій туристичній вулиці Львова. • Світло не вимикають. • Чудові можливості для реалізації бізнес-ідей


Анна Романчук

Дізнатися про об’єкт

Найближчим часом наш менеджер зв’яжеться з Вами!

Схожі пропозиції

Ще 4-кімнатні квартири поблизу

Успішно!
Ваш запит надісланий! Скоро з Вами зв’яжеться менеджер для уточнення деталей.
Помилка!
Ваш запит не надісланий! Спробуйте, будь ласка, пізніше.
Увага!
Схоже Ви ввели некоректні дані. Перевірте правильність введених даних.