Продається готовий дуплекс у котеджному містечку біля річки в тихій, екологічній та спокійній локації.

ID:
39961567
110 000 $
вул. Берегова, Угорники, Івано-Франківська область, Україна
    • Будинок
    • Стадія будівництва
    • і/о газове
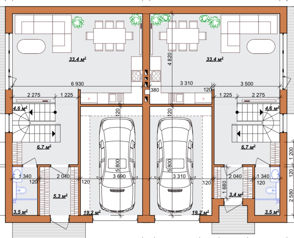
    • 145 м²

Опис

 Закрита територія, на якій розташовано всього 3 будинки. Дуплекси готові,збудовані та накриті. З усіма підведеними комунікаціями. 

Уся необхідна розвинена інфраструктура в пішій доступності. 

У вартість входить:

внутрішня штукатурка стін

готовий фасад

встановлений паркан

засіяний газон

бруківка

підключені всі комунікації (вода, електрика, газ, каналізація)


Тобто ви отримуєте повністю підготовлений будинок під ремонт — можна одразу планувати дизайн і поступово заїжджати. Цього місяця буде оздоблення фасаду будинку. Розмір земельної ділянки 4 сотих. Також поруч з ділянкою 2.7 сотих за нижчою ціною. 

Територія буде повністю облогорджена , покладена бруківка та засіяна трава. Ворота на безключовому доступі. 

Якщо шукаєте спокійне місце для життя поруч із містом, але без міської метушні — це варіант, який варто подивитися вживу.

Марія Говзан

Дізнатися про об’єкт

Найближчим часом наш менеджер зв’яжеться з Вами!

Схожі пропозиції

Ще будинки поблизу

Успішно!
Ваш запит надісланий! Скоро з Вами зв’яжеться менеджер для уточнення деталей.
Помилка!
Ваш запит не надісланий! Спробуйте, будь ласка, пізніше.
Увага!
Схоже Ви ввели некоректні дані. Перевірте правильність введених даних.